Duinoord, Bovenwoning in Den Haag

Kenmerken

Status
Verkocht
Prijs
Op aanvraag
Wijk
Duinoord
Locatie
Aan rustige weg, In woonwijk
Postcode
Den Haag
Woningtype
Bovenwoning
Bouwjaar
1892
Soort bouw
Bestaande bouw
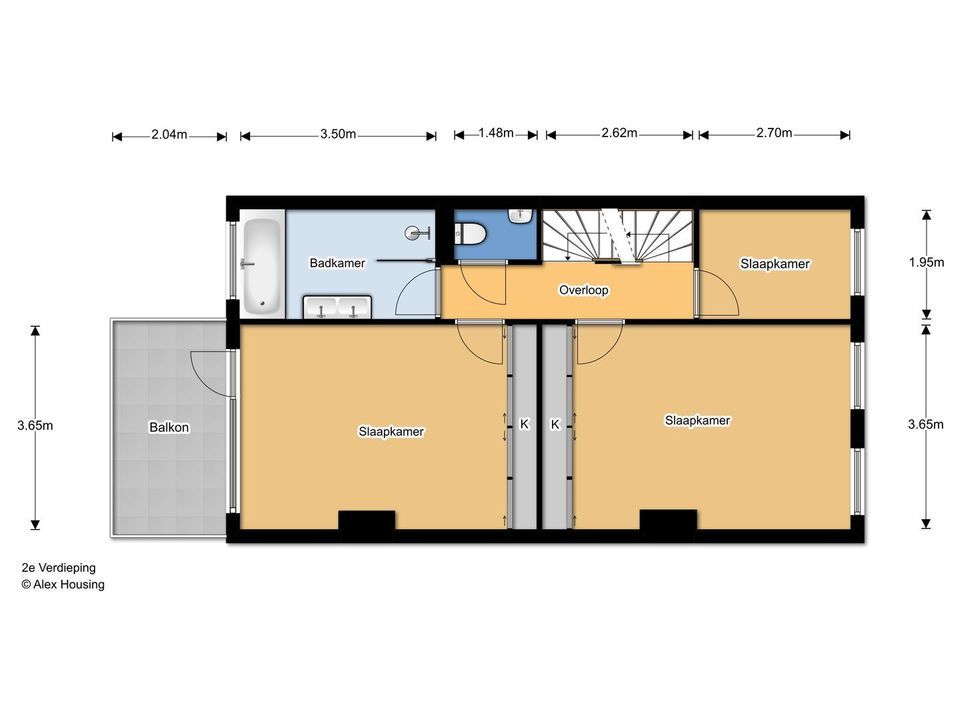
Balkon
Ja, 9m²
Kamers
7
Slaapkamers
5
Badkamers
1
Woonoppervlakte
180m²
Inhoud
600m³
Oplevering
Per direct

Deel op:  
  • Omschrijving

    Zeer royaal bemeten drielaags bovenhuis van maar liefst 180 m2, zeer ruime living en open keuken, 5 slaapkamers, 2 luxe badkamers, twee royale balkons, houten vloeren, dubbel glas, nieuwe elektrische installatie en CV installatie etc etc. . Zeer gewilde locatie in Duinoord, op loopafstand van zeer uitgebreid winkel- en openbaar vervoer aanbod!

    Deze woning is na een grondige algehele verbouwing Turn-key opgeleverd voorzien van:

    - nieuwe elektrische installatie;
    - nieuwe CV installatie en ketel;
    - nieuw stuc- en schilderwerk gehele woning;
    - nieuwe binnendeuren;
    - open luxe keuken voorzien van alle apparatuur;
    - houten vloeren met hoge plinten;
    - dubbel glas;
    - radiator bekisting;
    - luxe badkamer, o.a. voorzien van ligbad, inloopdouche en dubbele wastafel, handdoeken radiator, rain shower, toilet;
    - nieuw toilet;

    Deze woning is reeds verkocht. Deze presentatie is uitsluitend bedoeld om u een impressie te geven van onze projecten. Mocht u op zoek zijn naar een dergelijke woning, verzoeken wij u contact met ons op te nemen.

  • Plattegronden

  • Locatie

    [ { "address": "Duinoord 0", "zipCode": "", "city": "Den Haag", "lat": 52.0787892, "lng": 4.2889306 } ]
  • Reageer

    Hartelijk dank voor uw interesse in deze woning.
    Uw reactie is naar ons verzonden. Wij nemen zo snel mogelijk contact met u op.

    Er is iets mis gegaan met het versturen van het formulier.
    Controleer of u alle velden (goed) heeft ingevoerd en probeer het nog een keer.